致敬科教视野,“阅”启城市新封面
发布:2021-07-30慈溪房产网编辑:章杭奔 相关楼盘:上东辰府
在时代的履新步伐中,有一种具备推动城市价值升维的力量。
循迹大都市的脉络找寻答案。北京中关村科教园区,作为中国科教园区的前沿阵地,赋能城市乃至国家发展。上海张江科教园区,驰骋于时代热土改变城市的格局。
当时代的风吹向慈溪,伴随「溪畔智心」科教园区登上慈溪的舞台,也意味着,新的城市坐标即将诞生!旭辉弘阳·上东辰府踞科教园区启点,力求以时代封面作品,致敬慈溪新坐标。
风吹向何处,潮汇于何方,都是有迹可循的。
慈溪的城市更迭,与慈溪近年的发展不无关系。2020年的人均可支配收入约56653亿元,位居全国第8。到2020年,慈溪的GDP总量已达到约2008.3亿元。经济水平伴随着城市能级的扩容。
数据来源于“各地国民经济和社会发展统计公报”
2016年《长江三角洲城市群发展规划》将慈溪列为9座中等城市之一,面临着落实国家战略,探索服务宁波、融入长三角的新渠道与路径的重大机遇。
2019年国务院印发《长江三角洲区域一体化发展规划纲要》,长三角一体化战略正式上升为国家级战略。而「科创产业的融合发展」则是重要目标之一。这也为慈溪科教园区的诞生,埋下了伏笔。
城市发展的扩容,通常是此消彼长的过程。
以新城大道为轴,慈溪随着城市的不断壮大,开始形成一轴四心多功能区块发展布局。与此同时面临的现状是,老城区发展已高度成熟,明月湖CBD、新城河一期开发也已趋于成熟,慈溪向东迭进成为时代使然。
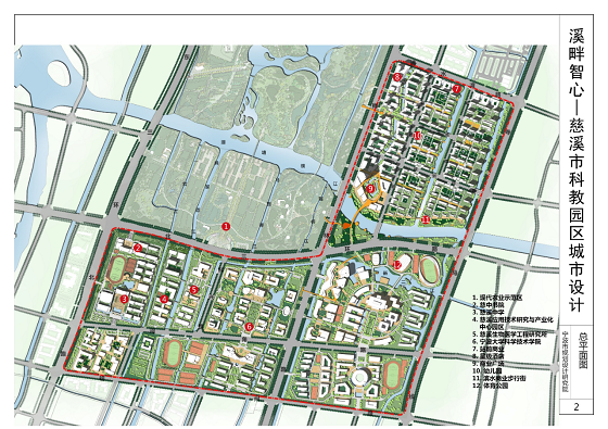
图片来源于慈溪市人民政府官网《慈溪市科教园区城市设计》批后公示
随着《慈溪市科教园区城市设计》的公布,科创文教区将作为城市未来启点的重要一极,成为通过教育和科技“双轮驱动”优化城市人才供给和推动产业转型的重要区域。
中国科学院上海分院慈溪应用技术和产业化中心、中科院慈溪生物医学工程研究所的正式开园,又将再次向前推进。至此,「溪畔智心」科教园区作为慈溪未来新坐标已是时代发展风向。
时代的垂青,给予「溪畔智心」科教园区代言慈溪未来的使命。
上东辰府踞科教园区,迎接时代的瞩目。周边慈溪中学、慈中书院、中科院生物医学工程研究所、中科院应用技术研究与产业化中心、宁波大学科学技术学院等丰沛教育给予项目人文氛围。(注:非学区承诺)
上东辰府区位图
北侧的万亩森林公园,占地约3585亩,为项目围合一方宜居盛境。被科教资源、生态公园环拥于怀之余,爱琴海购物公园、新城河滨水商业街(在建)、体育中心、慈溪大剧院、慈溪市科技馆,亦为上东辰府勾勒万象精彩的生活版图,成就慈溪人居高地上的城市封面。
生态资源、优质教育氛围、丰沛配套一一落位,对生活在这里的人们而言,浓郁的文教氛围宜居的生活环境,都将成为他们在这里实现美好生活向往的动力。
上东辰府x钟书阁 沉浸式艺术示范区
即将震撼首秀
敬请期待
展厅地址:慈溪市爱琴海购物公园一楼中庭
VIP LINE:0574-5802 9999
本资料为要约邀请,不视为要约,所载文字以及相片、地图、示意图、标注图片等仅供参考用途,所有政府、政策信息均来源于官方披露信息,具体以实物、政府主管部门批准文件及买卖双方签订的商品房买卖合同约定为准。如有变化恕不另行通知。本项目推广名为上东辰府,政府备案核准名为上东辰府。本项目开发商为宁波卓隆置业有限公司。本资料制作时间为2021年7月15日,有效期至2021年7月31日。本公司在交易过程中提供的各类配套信息均来自政府相关主管部门或机构公开信息或商业合约或现场现状,相关信息更新截止于资料制作时,后续各类相关信息可能发生变化。各类配套设施相关最新信息及情况,须以政府相关主管部门、机构公开最新信息为准。本资料所载区位图对项目周边环境、交通、教育及其它配套设施的介绍,旨在提供相关信息,且并不完整表达周边相关所有信息,不意味着本公司对此作出了承诺和保证。本资料内所述“洋房(6-11层)”为地上6-11层的建筑,分布于1-5幢、7-9幢、11-13幢、16-18幢、20-22幢、24-27幢。【广告】






