慈溪首个保障性租赁用房正式投用
发布:2025-11-24慈溪房产网编辑:孙静
有租房需求的小伙伴看过来!
慈溪首个保障性租赁用房
慈溪高新区“英才公寓”
正式投用
即将开放申请
房子内部长啥样?
怎么申请?入住有何要求?
先睹为快
↓

慈溪高新区“英才公寓”坐落于慈溪高新区高科大道188号,地理位置优越,交通便捷。“英才公寓”包括1114套住房,4000余方配套商业以及公建配套用房。公寓精装修交付,配备基本家具家电,可实现“拎包入住”。该项目可为周边企业吸引人才、留住人才提供有力保障,为入住的每一位市民提供一个温馨的港湾,让他们工作安心、发展顺心、生活舒心、居住放心。


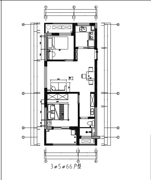
“英才公寓”三类户型

38㎡的单人间分为大床间和双床间,原木色系+人性化收纳设计,在有限空间实现舒适与功能的完美平衡,为居住者打造一个能真正放松的治愈系小窝。



两室一厅有50㎡和60+㎡两个选择,无论是朋友合租还是家庭用房都十分适合,原木风装饰,拎包入住。
50㎡户型和实景图



66㎡户型和实景图




有意向的单位和个人可拨打招租咨询电话或前往英才公寓咨询。在优先满足保障用户的前提下实行常态化配租,根据先到先得原则签约。
在本市范围内无房,且未享受过我市其他政府住房保障政策和住房优惠政策(包括:享受公共租赁住房保障、承租国家直管公有住房、购买限价商品房、购买经济适用房、房改购房、领取住房补贴、批地建房等)的新市民、青年人、产业工人和基本公共服务行业从业人员等群体。
(1)保障用户可享受租金9折优惠(物业费不变),履约保证金减半。
(2)租赁期限为一年,可享受减免1个月租金(不免物业费)的优惠;租赁期限为二年,可享受减免3个月租金(不免物业费)的优惠;租赁期限为三年,可享受减免5个月租金(不免物业费)的优惠;于每年合同末进行分次减免。上述优惠可同时享受。
身份证复印件、无房证明(仅保障用户需要)、承诺书(现场签订)。
1.咨询电话
0574-63200181
0574-63200182
2.咨询时间
上午9:00—11:30
下午14:00-16:30






